Ihre neue Küche
Wir "fragen Sie aus!" Wir nehmen den Ist-Zustand auf: Raum, Kapazitäten, Mitarbeitersituation. Wir besprechen Ihre Vorstellungen und Wünsche. Wir machen uns erste Gedanken und bringen diese in Form vorläufiger Skizzen zu Papier. Unsere Ideen sollen Ihnen gefallen. Ansonsten reden wir weiter. Bis es passt! .
Beratung
Küchenumbau oder Neueinrichtung? Wir machen uns Zeit für Sie! Dabei ist uns kein Raum zu eng und kein Projekt zu groß. Nehmen Sie Kontakt mit uns auf. Tel. 0 6542 9873-0 oder info@wirtz-online.de. So können wir einen ersten unverbindlichen Termin bei Ihnen im Betrieb oder bei uns in Zell vereinbaren.
Konzept
Wir legen gemeinsam die grobe Richtung fest: Konventionelle Küche? Cook&Chill-Küche? Herdanlage in durchgehender Hygieneausführung? Modular und dennoch hygienisch? Voll flexible Modularküche?
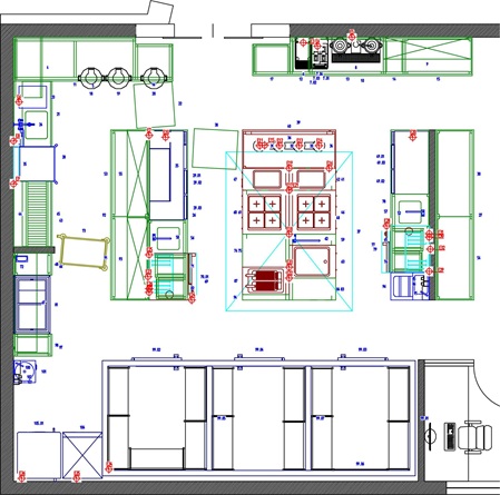
Planung
Wir besprechen mit Ihnen, wie es weitergeht. Die Ideen auf unserer Handskizze werden in unser Planungsprogramm eingepflegt. Wir planen mit modernster Software in 2 D und in 3 D. Sie erhalten einen übersichtlichen Plan in geeignetem Maßstab: 1:50, 1:25 oder 1:20. Dazu 3-D- und Frontansichten der einzelnen Arbeitsbereiche.
Energiebedarfslisten für Anfragen bei den Installationsfirmen. Eine überschlägige Kostenaufstellung. Planungsaufwand: faire Abrechnung im Stunden-nachweis.
Findet die Planung Ihr Gefallen, erhalten Sie von uns ein exakt ausgearbeitetes Angebot, nach dem in der Regel der Auftrag erfolgt.
Wir wissen, dass so etwas auch "umsonst" gemacht wird. Unsere Erfahrung dazu: Es ist dann meistens auch "umsonst"!
Die Ausführungsplanungen, wie Planung der Sockel, der Energieversorgung Elektro, Kälte, Wasser, Abwasser sind gerätespezifisch und Bestandteil des späteren Auftrags.
Lieferung
Lieferung: Geht nicht gibt´s nicht! Wir liefern an und bringen die Geräte an Ort und Stelle. Das darf auch mal kompliziert sein. Uns fällt immer etwas ein. Sehen Sie die Fotos unten! Steile Treppen, durch die Luft und wie auch immer: Wir kriegen´s rein. Damit die Montage losgehen kann.
Eine sorgfältige fachgerecht Montage krönt alle Vorarbeiten. Unsere erfahrenen Techniker arbeiten passgenau nach den erstellten Plänen. Vor Ort sind sie jedoch flexibel und aufgeschlossen für eventuelle Änderungswünsche während der Montage. Wenn alles passt, folgen genaue Einstellungen und gründliche Einweisungen.
Die Einbringung durch die Luft kann ganz spannend sein. Doch können Sie sich auf unsere Erfahrung auch damit verlassen.
Montage
Steht auf keiner Speisenkarte: Kabelsalat. Für unsere Techniker bei der Küchenmontage kein Problem. Erfahren Sie mehr über unsere Leistungen im Bereich Großküchenprojekte. Entdecken Sie unser riesiges Leistungsspektrum für den Profi!
Einstellung & Einweisung
Für beste Ergebnisse. Spülmaschinen werden nach sorgfältigem Wassertest genau eingestellt. Bei Combidämpfern zum Beispiel werden die gewünschten Programmschritte erklärt und eingeübt. Auf Wunsch weitere hausinterne oder externe Seminare und Praxisübungen.
Wartung & Reparaturservice
Ohne zuverlässigen Service sollten Sie eigentlich keine Anschaffung tätigen. Wir von Wirtz stehen dafür gerade, dass das was wir verkaufen auch gewartet und repariert wird. Und zwar von unseren eigenen in den Herstellerwerken aus- und fortgebildeten Servicetechnikern. Es gibt einige wenige Ausnahmen, bei denen der Service extern erfolgen muss.

Referenzen
Sehen Sie hier einige Referenzprojekte: Referenzen
Wirtz Zell (Mosel)
Gastronomie- &
Großküchenausstattung
Barlstraße 30
D-56856 Zell (Mosel)
Tel.: 0 65 42/98 73 - 0
Fax: 0 65 42/98 73 -55
E-Mail: info@wirtz-online.de
www.wirtz-online.de
Mo. - Fr. von 8 bis 12 und von 13 bis 17 Uhr
Katalog: info@wirtz-online.de | Tel.:06542-9873-0